Fabrica Zenon Torrealba
Diseño tecnico, estructurado, funcional y legal de una fabrica.
Galería del Proyecto
Biografía del Proyecto
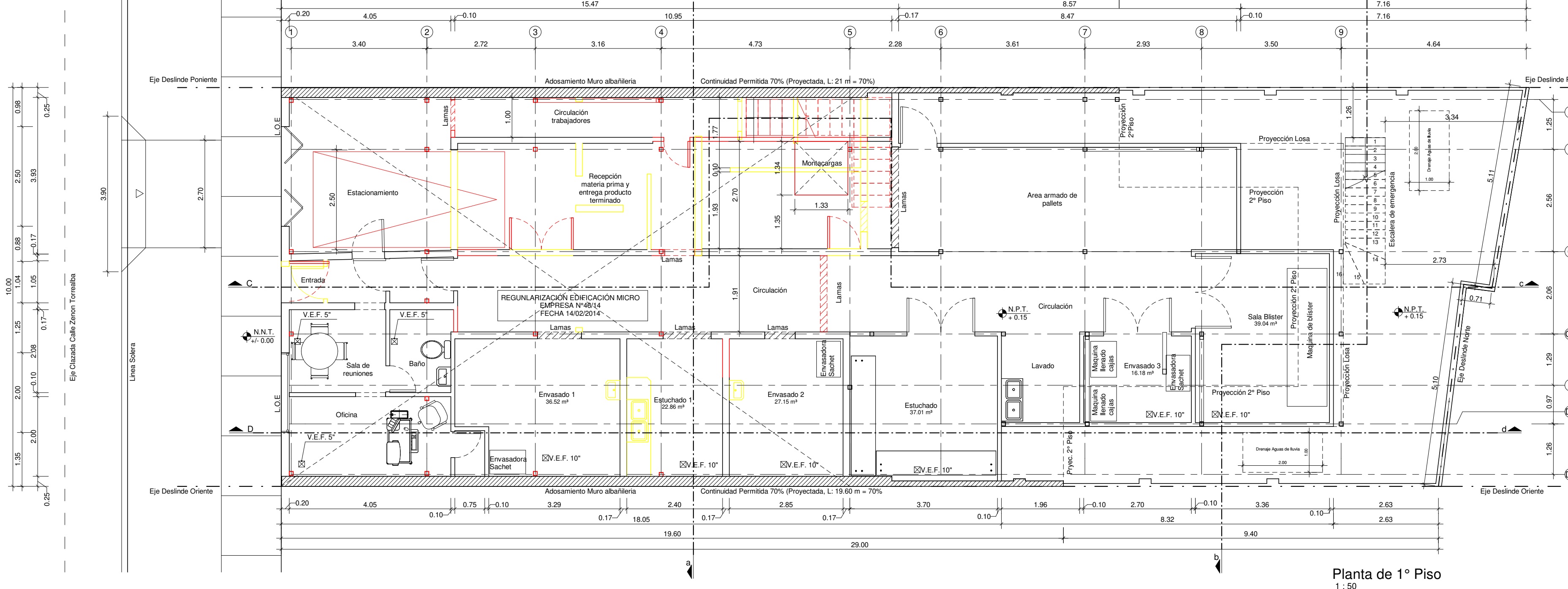
Este proyecto consistio en la ampliacion de una fabrica industrial, en su necesidad de aumentar su produccion y aumento de personal fue necesario desarrollar por etapas esta ampliacion sin afectar tu produccion actual.
Nuesto trabajo en este proyecto fue enfocado en diseño funcional, y no estetico, el propietario necesitaba una fabrica que se ajustara y cumpliera con la normativa vigente y exigencias legales de la SEREMI.
Concluyendose de manera efectiva todos los tramites legales necesarios Municipales, Estructurales, Agua, Alcantarillado y SEREMI. Este proyecto se concluyo con una recepcion final aproada.
Datos Clave
- Categoría Permiso de Edificación, Ampliacion Mayor a 100m2
- Ubicación San Joaquin, Santiago
- Superficie Ampliación 315 m²
- Año de Finalización 2021
- Servicios Incluidos Levantamiento, Planimetría, Cálculo Estructural,Agua y Alcantarillado, Trámites Municipales.