Casa Portezuelo 2
Diseño Clasico combinandolo con materiales modernos
Galería del Proyecto
Biografía del Proyecto
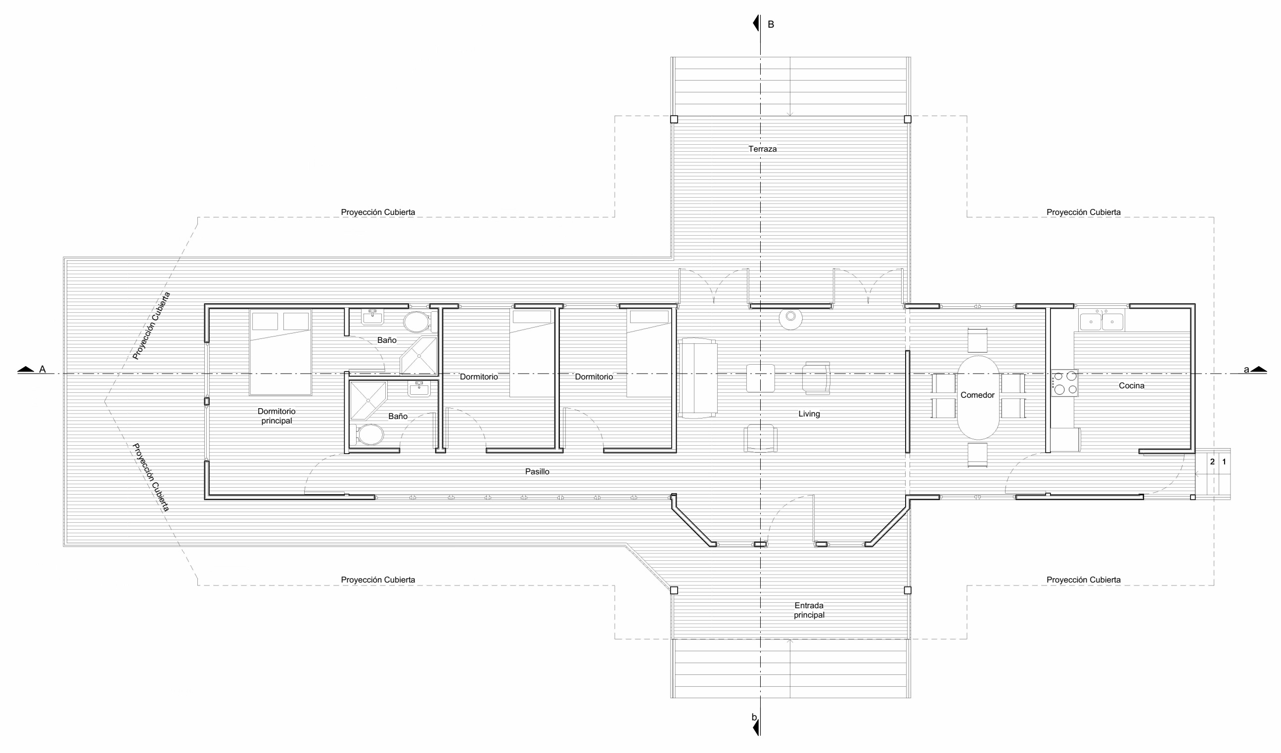
Diseñamos esta vivienda para materializar el deseo de la propietaria de un hogar de estilo campestre clásico y muy tradicional, con un fuerte protagonismo de la madera. Nuestro enfoque se centró en combinar esta estética rústica con una construcción eficiente y duradera: para garantizar la máxima resistencia y longevidad sin disparar los costos, la estructura principal se ejecutó con una base sólida de concreto y metal. Posteriormente, esta estructura fue hábilmente revestida con acabados que simulan por completo la madera, logrando la ilusión visual de una casa 100% de madera. Este proceso permitió un ahorro significativo en el presupuesto mientras se entregaba una vivienda que combina la calidez y el carácter estético del diseño tradicional, con la solidez y la resistencia estructural que exigen las construcciones modernas, destacando en el exterior sus amplias terrazas y el pórtico de bienvenida.
Datos Clave
- Categoría Vivienda
- Ubicación Comuna de Portezuelo, XVI Región
- Superficie Construida 110 m²
- Año de Finalización 2020
- Servicios Incluidos Diseño, Planimetría, Cálculo Estructural, Trámites Municipales.